Аренда офиса в Хамовниках
MalinaProperty MalinaProperty
Аренда и продажа коммерческой недвижимости
×
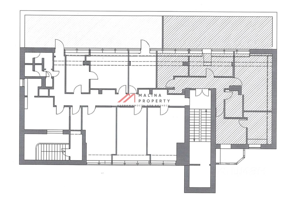
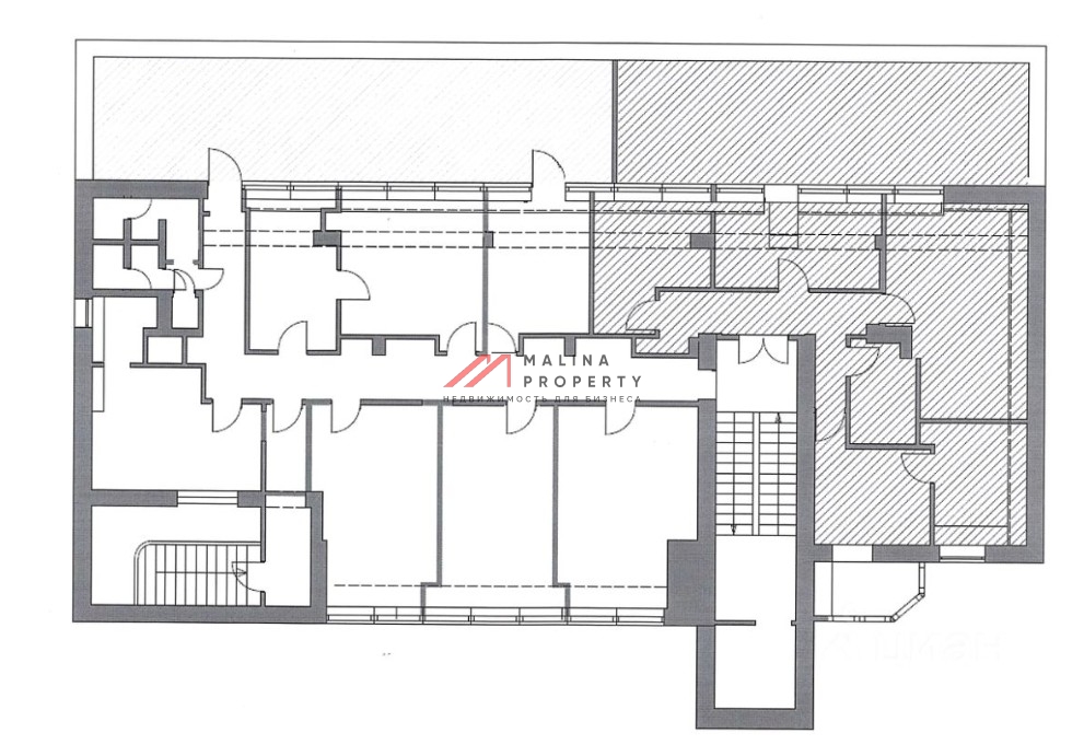
Аренда офиса в Хамовниках
Особняк / Здание (лот 184051)
г. Москва, Бурденко д. 14 к А
Парк Культуры (пешком 8 мин.)
Похожие предложения
Подберем для вас подходящие варианты.
Оставьте заявку, брокер подберет подходящие объекты всего за 5-10 минут и сэкономит до 80% вашего времени
Александр
Александр
Брокер по работе с клиентами
Александр
×
Задайте вопрос:
Александр
Брокеру по работе с клиентами
+ 7 (495) 374 90 77