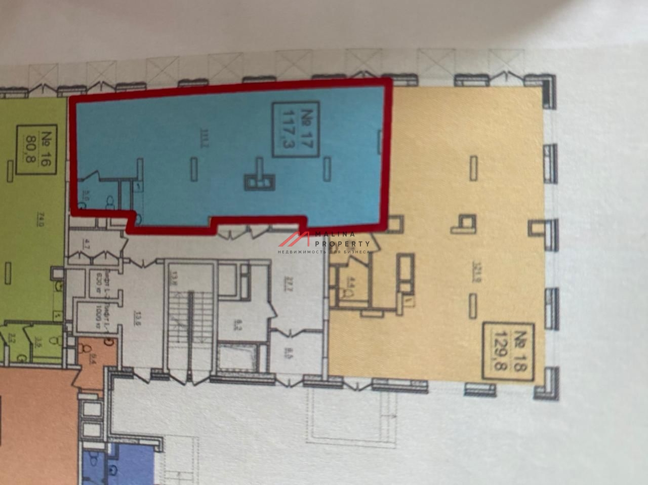
Аренда торгового помещения в новостройке
MalinaProperty MalinaProperty
Аренда и продажа коммерческой недвижимости
×
Аренда торгового помещения в новостройке
В новостройке (лот 162477)
г. Москва, Архитектора Щусева д. 2к1
ЗИЛ (пешком 10 мин.)
Похожие предложения
Подберем для вас подходящие варианты.
Оставьте заявку, брокер подберет подходящие объекты всего за 5-10 минут и сэкономит до 80% вашего времени
Иван
Иван
Брокер по работе с клиентами
Иван
×
Задайте вопрос:
Иван
Брокеру по работе с клиентами
+ 7 (495) 374 90 77