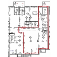
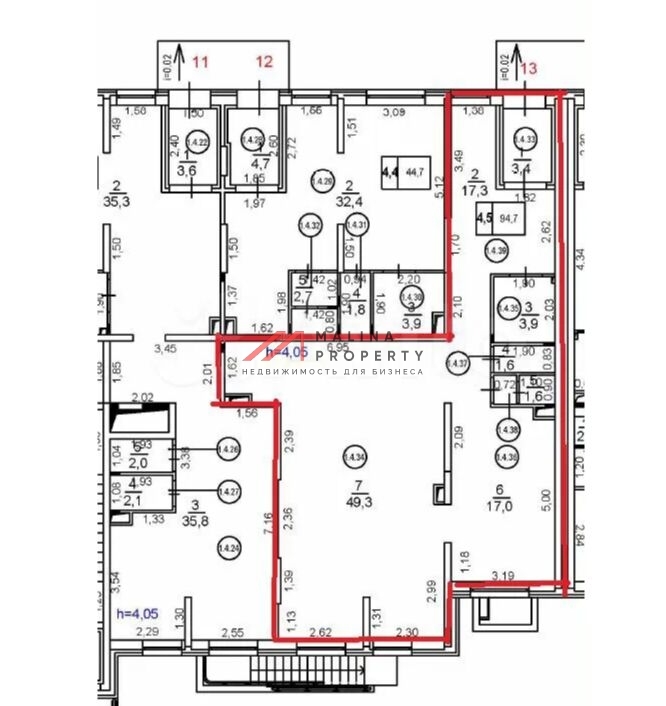
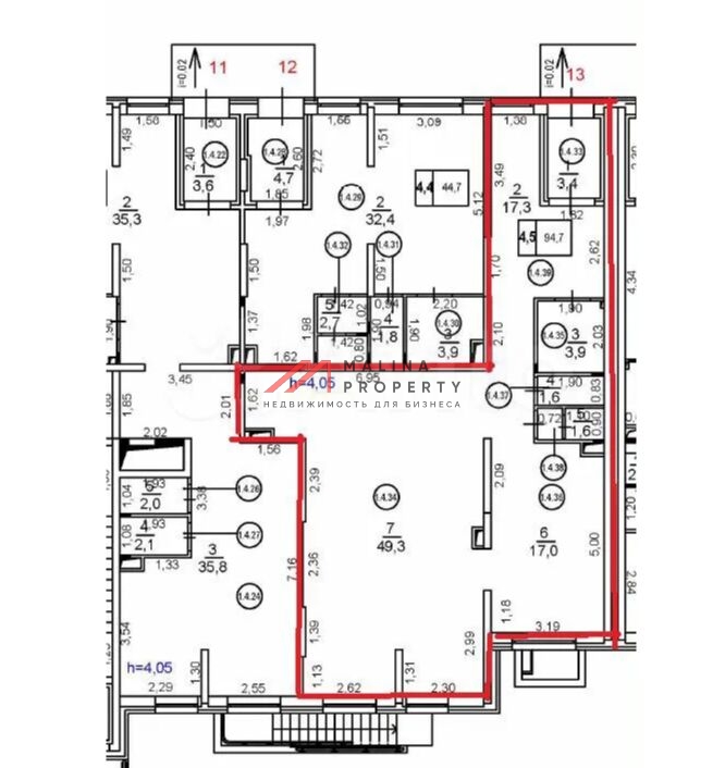
Продажа помещения с арендатором фитнес клуб Aura
×
Продажа помещения с арендатором фитнес клуб Aura
Торговое помещение (лот 167617)
г. Красногорск, ул Новотушинская д. 2
Планерная (транспортом 14 мин.)
Похожие предложения
Подберем для вас подходящие варианты.
Оставьте заявку, брокер подберет подходящие объекты всего за 5-10 минут и сэкономит до 80% вашего времени
Анна
Анна
Брокер по работе с клиентами
Анна
×
Задайте вопрос:
Анна
Брокеру по работе с клиентами
+ 7 (495) 374 90 77