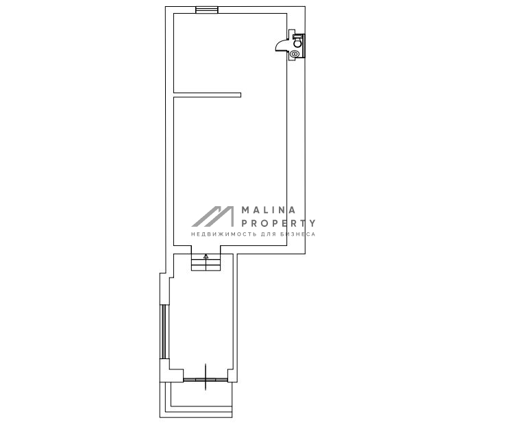
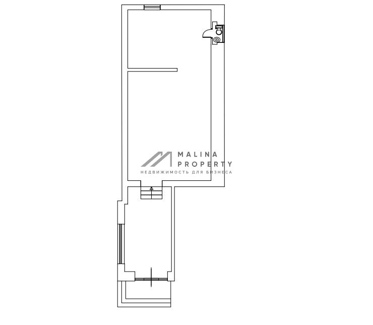
Продажа торгового помещения на высоком трафике
MalinaProperty MalinaProperty
Аренда и продажа коммерческой недвижимости
×
Продажа торгового помещения на высоком трафике
Торговое помещение (лот 168560)
г. Москва, Краснодарская д. 57к3
Люблино (пешком 4 мин.)
Похожие предложения
Подберем для вас подходящие варианты.
Оставьте заявку, брокер подберет подходящие объекты всего за 5-10 минут и сэкономит до 80% вашего времени
Анна
Анна
Брокер по работе с клиентами
Анна
×
Задайте вопрос:
Анна
Брокеру по работе с клиентами
+ 7 (495) 374 90 77