Аренда помещения в ЖК Новое Внуково
×
Аренда помещения в ЖК Новое Внуково
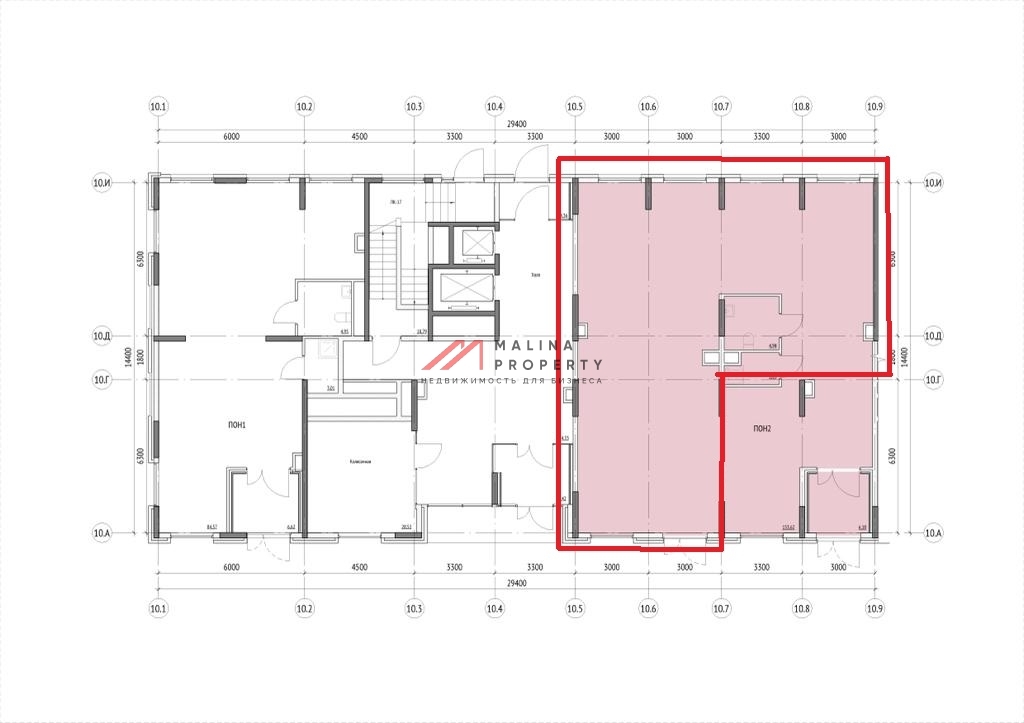
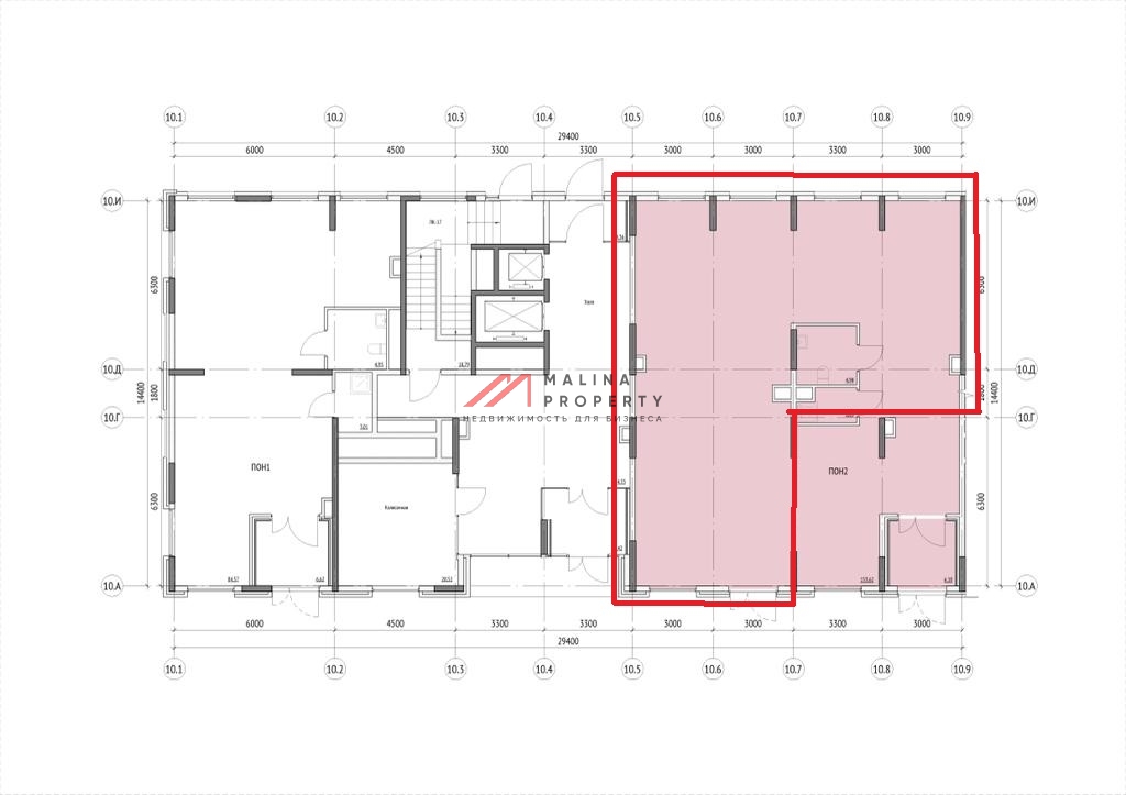
Торговое помещение (лот 171163)
г. Москва, ул Аэростатная д. 1
Рассказовка (транспортом 54 мин.)
Похожие предложения
Подберем для вас подходящие варианты.
Оставьте заявку, брокер подберет подходящие объекты всего за 5-10 минут и сэкономит до 80% вашего времени
Николай
Николай
Брокер по работе с клиентами
Николай
×
Задайте вопрос:
Николай
Брокеру по работе с клиентами
+ 7 (495) 374 90 77