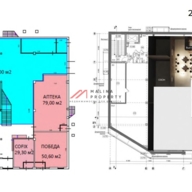
Продажа торгового центра рядом с метро Тушинская
MalinaProperty MalinaProperty
Аренда и продажа коммерческой недвижимости
×
Продажа торгового центра рядом с метро Тушинская
Торговое здание (лот 172169)
г. Москва, ул Тушинская д. 18
Тушинская (пешком 5 мин.)
Похожие предложения
Подберем для вас подходящие варианты.
Оставьте заявку, брокер подберет подходящие объекты всего за 5-10 минут и сэкономит до 80% вашего времени
Виталий
Виталий
Брокер по работе с клиентами
Виталий
×
Задайте вопрос:
Виталий
Брокеру по работе с клиентами
+ 7 (495) 374 90 77