Продажа нежилого помещения в ЖК Хедлайнер
MalinaProperty MalinaProperty
Аренда и продажа коммерческой недвижимости
×
Продажа нежилого помещения в ЖК Хедлайнер
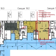
Торговое помещение (лот 172388)
г. Москва, Шмитовский пр. д. 39 к 8
Шелепиха (пешком 2 мин.)
Похожие предложения
Подберем для вас подходящие варианты.
Оставьте заявку, брокер подберет подходящие объекты всего за 5-10 минут и сэкономит до 80% вашего времени
Виталий
Виталий
Брокер по работе с клиентами
Виталий
×
Задайте вопрос:
Виталий
Брокеру по работе с клиентами
+ 7 (495) 374 90 77