Продажа торгового здания с арендаторами
MalinaProperty MalinaProperty
Аренда и продажа коммерческой недвижимости
×
Продажа торгового здания с арендаторами
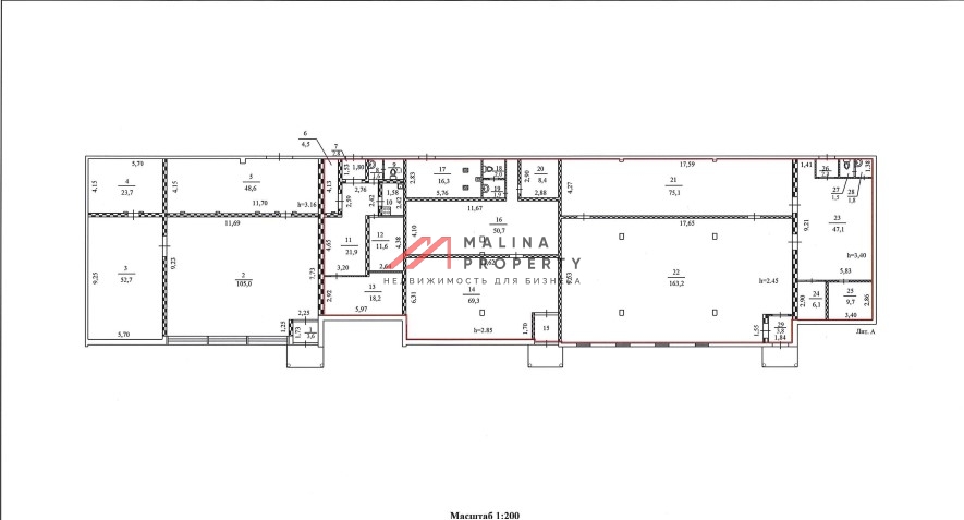
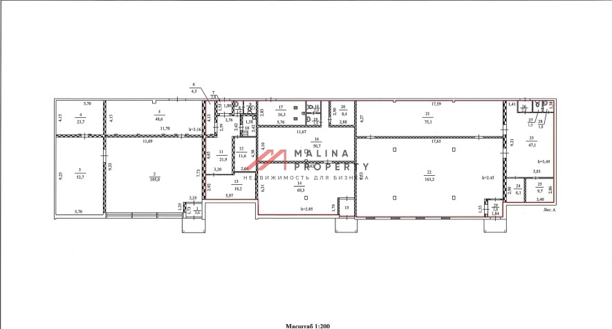
Торговое здание (лот 174106)
г. Щелково, с. Трубино, Фабричная д. 54/1
Шоссе энтузиастов
Похожие предложения
Подберем для вас подходящие варианты.
Оставьте заявку, брокер подберет подходящие объекты всего за 5-10 минут и сэкономит до 80% вашего времени
Анна
Анна
Брокер по работе с клиентами
Анна
×
Задайте вопрос:
Анна
Брокеру по работе с клиентами
+ 7 (495) 374 90 77