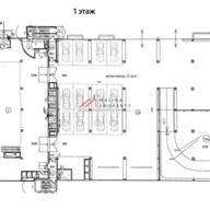
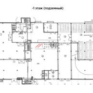
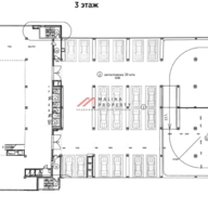
Продажа торгового здания у метро Красногвардейская
MalinaProperty MalinaProperty
Аренда и продажа коммерческой недвижимости
×
Продажа торгового здания у метро Красногвардейская
Торговое здание (лот 176830)
г. Москва, Ореховый бульвар д. 26
Красногвардейская (пешком 7 мин.)
Похожие предложения
Подберем для вас подходящие варианты.
Оставьте заявку, брокер подберет подходящие объекты всего за 5-10 минут и сэкономит до 80% вашего времени
Олег
Олег
Брокер по работе с клиентами
Олег
×
Задайте вопрос:
Олег
Брокеру по работе с клиентами
+ 7 (495) 374 90 77