Продажа коммерческого помещения в ЖК Мытищи Парк
MalinaProperty MalinaProperty
Аренда и продажа коммерческой недвижимости
×
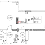
Продажа коммерческого помещения в ЖК Мытищи Парк
В новостройке (лот 178609)
г. Мытищи, ул Стрельбище Динамо д. 10
Медведково (транспортом 25 мин.)
Похожие предложения
Подберем для вас подходящие варианты.
Оставьте заявку, брокер подберет подходящие объекты всего за 5-10 минут и сэкономит до 80% вашего времени
Олег
Олег
Брокер по работе с клиентами
Олег
×
Задайте вопрос:
Олег
Брокеру по работе с клиентами
+ 7 (495) 374 90 77
В данный момент объявление смотрят еще 1 человек(а)
ОК