Продажа помещения в квартале LUNAR
MalinaProperty MalinaProperty
Аренда и продажа коммерческой недвижимости
×
Продажа помещения в квартале LUNAR
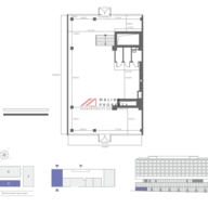
Торговое помещение (лот 178717)
г. Москва, Ленинский пр-кт д. 38
Ленинский проспект (пешком 15 мин.)
Похожие предложения
Подберем для вас подходящие варианты.
Оставьте заявку, брокер подберет подходящие объекты всего за 5-10 минут и сэкономит до 80% вашего времени
Олег
Олег
Брокер по работе с клиентами
Олег
×
Задайте вопрос:
Олег
Брокеру по работе с клиентами
+ 7 (495) 374 90 77