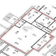
Продажа коммерческого помещения в ЖК "Большая Семерка"
MalinaProperty MalinaProperty
Аренда и продажа коммерческой недвижимости
×
Продажа коммерческого помещения в ЖК "Большая Семерка"
В новостройке (лот 181239)
г. Москва, ул Краснобогатырская д. 40
Преображенская площадь (пешком 20 мин.)
Похожие предложения
Подберем для вас подходящие варианты.
Оставьте заявку, брокер подберет подходящие объекты всего за 5-10 минут и сэкономит до 80% вашего времени
Олег
Олег
Брокер по работе с клиентами
Олег
×
Задайте вопрос:
Олег
Брокеру по работе с клиентами
+ 7 (495) 374 90 77
В данный момент объявление смотрят еще 1 человек(а)
ОК