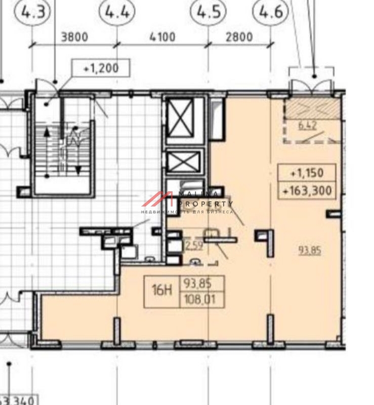
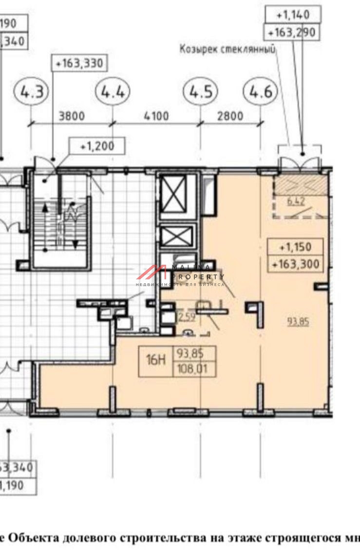
Продажа помещения с арендатором в ЖК Мытищи парк
MalinaProperty MalinaProperty
Аренда и продажа коммерческой недвижимости
×
Продажа помещения с арендатором в ЖК Мытищи парк
В новостройке (лот 181247)
г. Мытищи, 1-й Стрелковый пер д. 3
Медведково (транспортом 23 мин.)
Похожие предложения
Подберем для вас подходящие варианты.
Оставьте заявку, брокер подберет подходящие объекты всего за 5-10 минут и сэкономит до 80% вашего времени
Виталий
Виталий
Брокер по работе с клиентами
Виталий
×
Задайте вопрос:
Виталий
Брокеру по работе с клиентами
+ 7 (495) 374 90 77