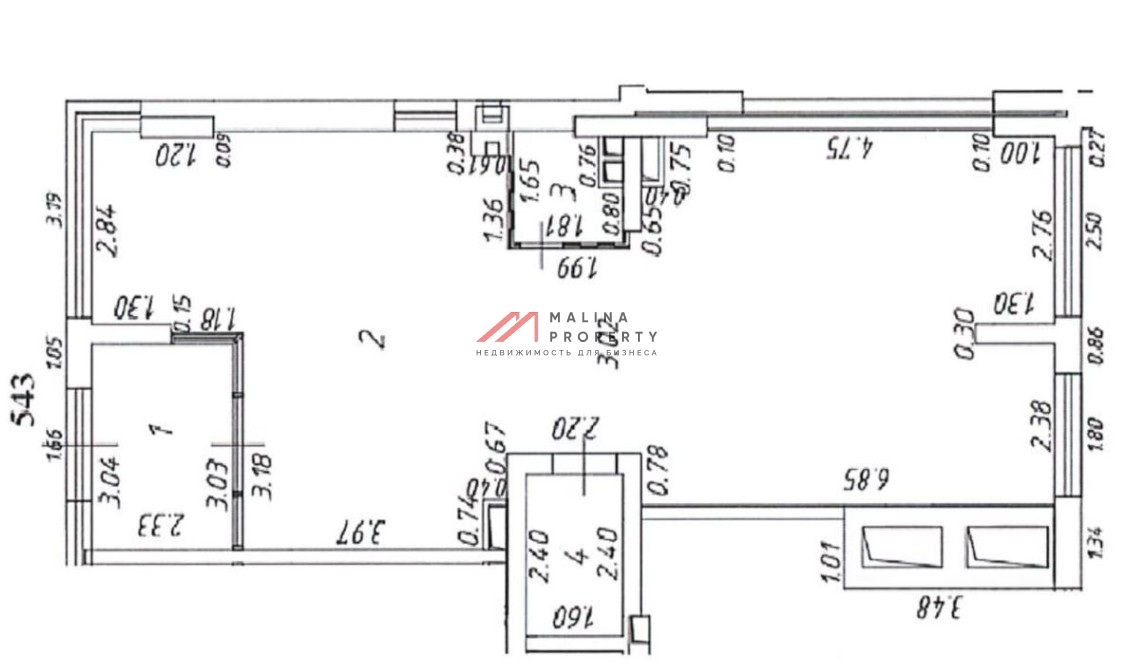
Аренда торгового помещения в ЖК "Спутник"
MalinaProperty MalinaProperty
Аренда и продажа коммерческой недвижимости
×
Аренда торгового помещения в ЖК "Спутник"
В новостройке (лот 182973)
г. Красногорск, Тенистых Аллей д. 3 корпус 1
Строгино (пешком 20 мин. транспортом 10 мин.)
Похожие предложения
Подберем для вас подходящие варианты.
Оставьте заявку, брокер подберет подходящие объекты всего за 5-10 минут и сэкономит до 80% вашего времени
Артем
Артем
Брокер по работе с клиентами
Артем
×
Задайте вопрос:
Артем
Брокеру по работе с клиентами
+ 7 (495) 374 90 77