Продажа торгового помещения в г. Реутов
×
Продажа торгового помещения в г. Реутов
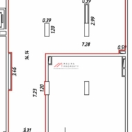
Торговое помещение (лот 183026)
г. Балашиха, Реутовская д. 15
Шоссе энтузиастов (транспортом 25 мин.)
Похожие предложения
Подберем для вас подходящие варианты.
Оставьте заявку, брокер подберет подходящие объекты всего за 5-10 минут и сэкономит до 80% вашего времени
Андрей
Андрей
Брокер по работе с клиентами
Андрей
×
Задайте вопрос:
Андрей
Брокеру по работе с клиентами
+ 7 (495) 374 90 77