Продажа помещения с арендаторами в ЖК Апрелевский
MalinaProperty MalinaProperty
Аренда и продажа коммерческой недвижимости
×
Продажа помещения с арендаторами в ЖК Апрелевский
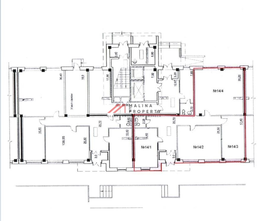
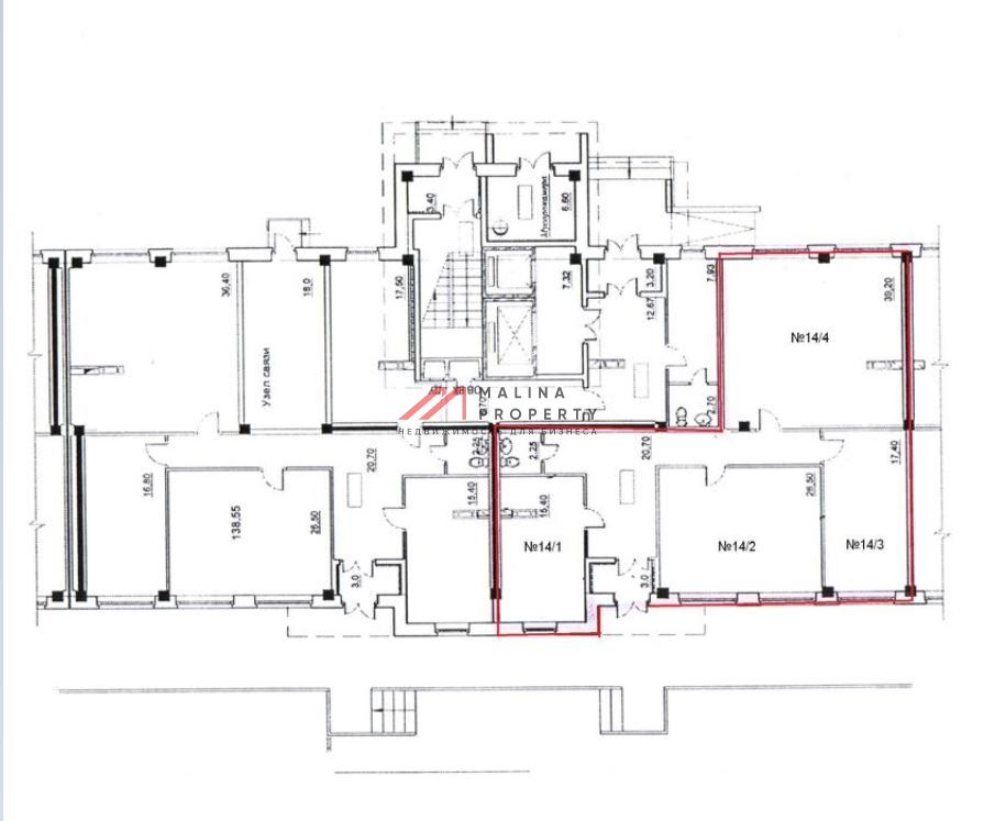
Торговое помещение (лот 183281)
г. Наро-Фоминск, Апрелевка, ул. Горького д. 25
Саларьево (транспортом 40 мин.)
Похожие предложения
Подберем для вас подходящие варианты.
Оставьте заявку, брокер подберет подходящие объекты всего за 5-10 минут и сэкономит до 80% вашего времени
Виталий
Виталий
Брокер по работе с клиентами
Виталий
×
Задайте вопрос:
Виталий
Брокеру по работе с клиентами
+ 7 (495) 374 90 77