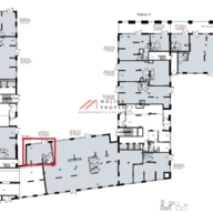
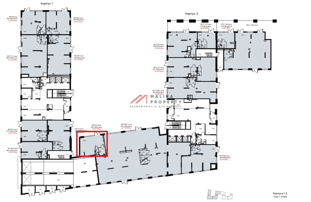
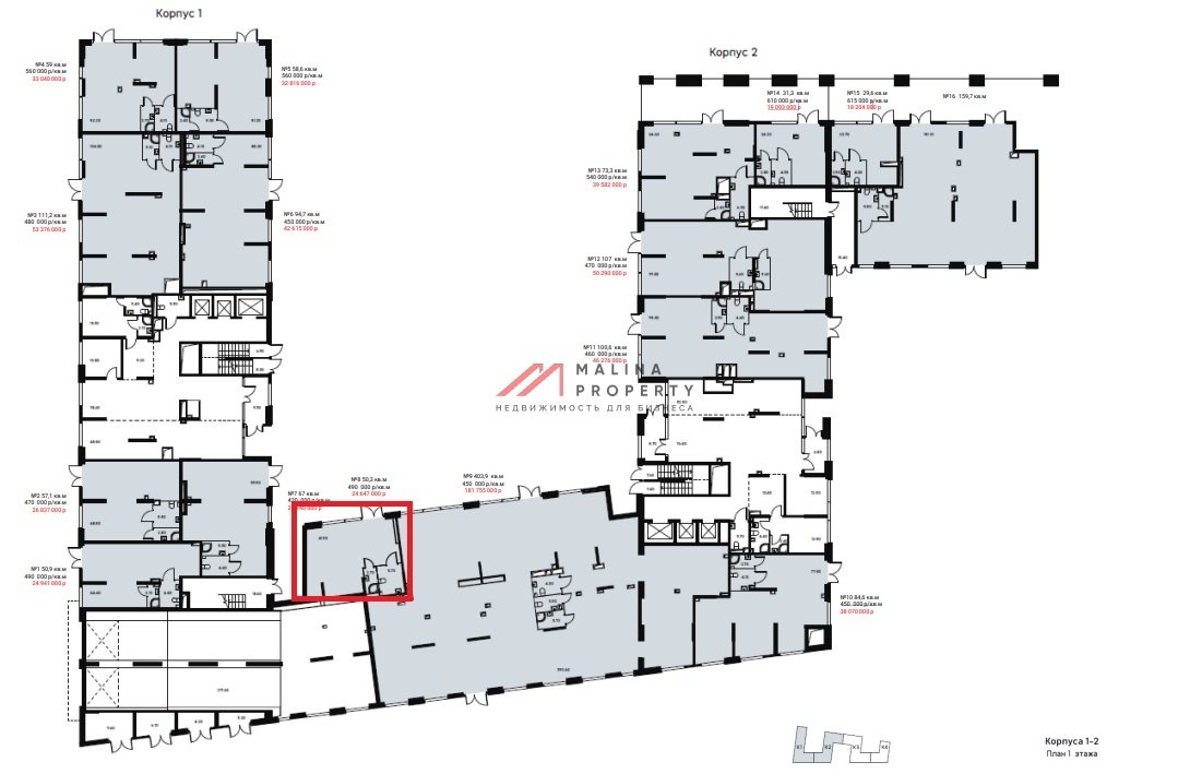
Продажа торгового помещения в ЖК "Signal"
MalinaProperty MalinaProperty
Аренда и продажа коммерческой недвижимости
×
Продажа торгового помещения в ЖК "Signal"
В новостройке (лот 183850)
г. Москва, Сигнальный проезд д. 12
Владыкино (пешком 5 мин.)
Рекомендуем
Торг
Похожие предложения
Подберем для вас подходящие варианты.
Оставьте заявку, брокер подберет подходящие объекты всего за 5-10 минут и сэкономит до 80% вашего времени
Дмитрий
Дмитрий
Брокер по работе с клиентами
Дмитрий
×
Задайте вопрос:
Дмитрий
Брокеру по работе с клиентами
+ 7 (495) 374 90 77