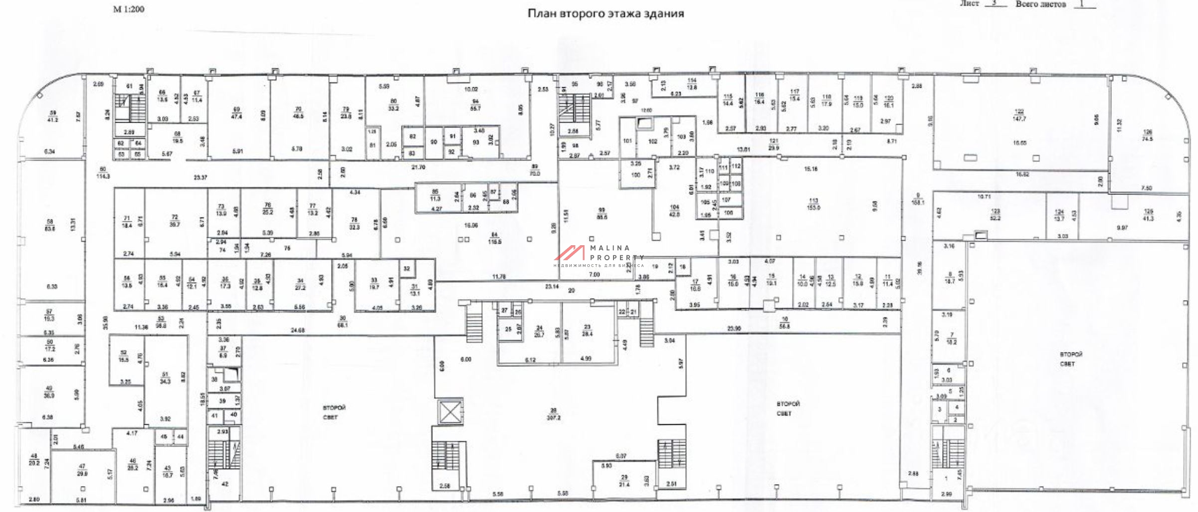
Продажа дилерского центра в г. Мытищи
MalinaProperty MalinaProperty
Аренда и продажа коммерческой недвижимости
×
Продажа дилерского центра в г. Мытищи
Торговое помещение (лот 184326)
г. Мытищи, Нагорное поселок, ул. Центральная д. вл2с1
Алтуфьево (транспортом 10 мин.)
Похожие предложения
Подберем для вас подходящие варианты.
Оставьте заявку, брокер подберет подходящие объекты всего за 5-10 минут и сэкономит до 80% вашего времени
Олег
Олег
Брокер по работе с клиентами
Олег
×
Задайте вопрос:
Олег
Брокеру по работе с клиентами
+ 7 (495) 374 90 77