Продажа арендного бизнеса в ЖК Квартал Строгино
MalinaProperty MalinaProperty
Аренда и продажа коммерческой недвижимости
×
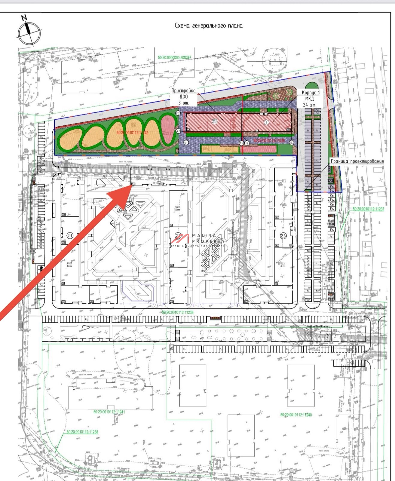
Продажа арендного бизнеса в ЖК Квартал Строгино
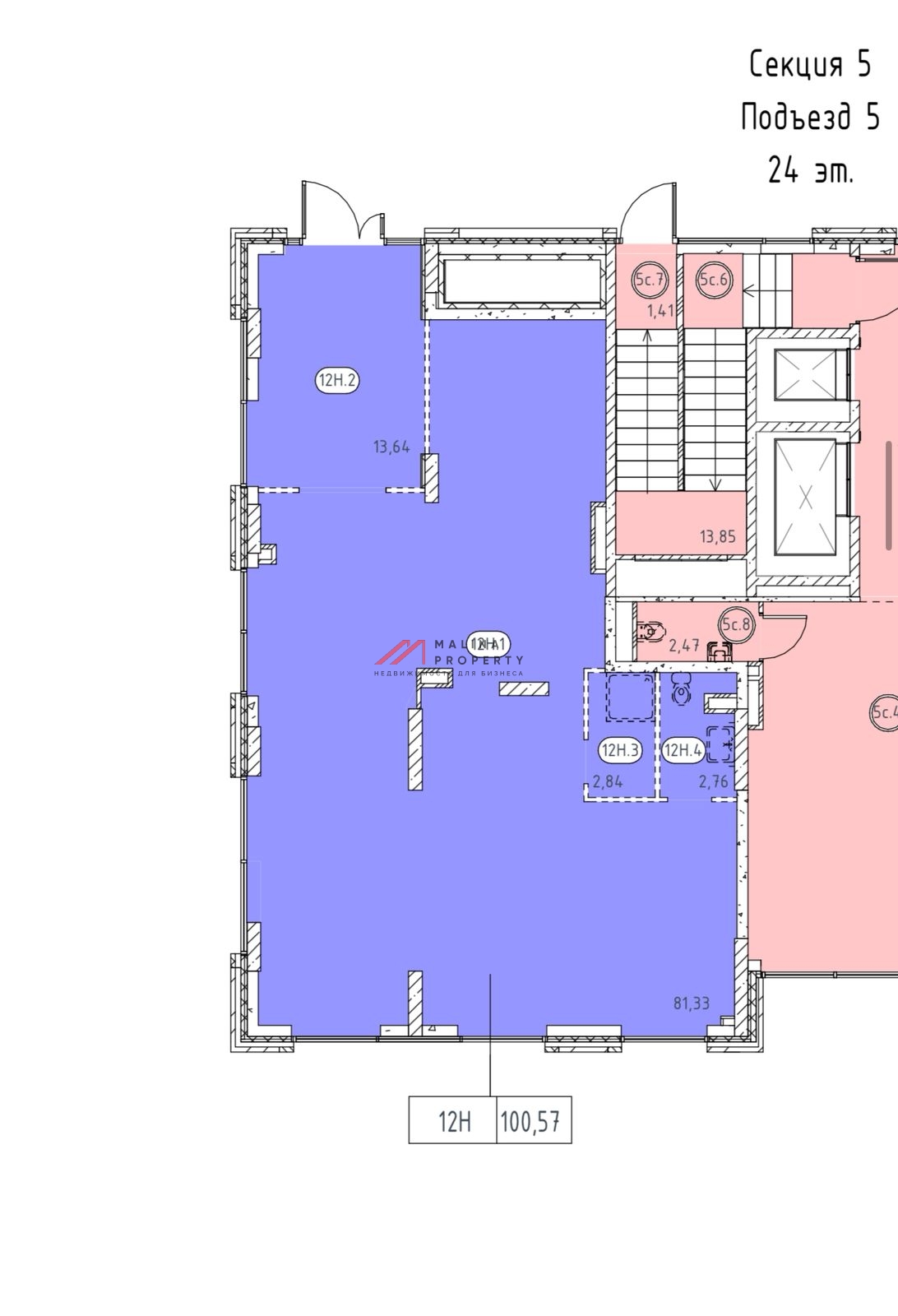
Торговое помещение (лот 184372)
г. Москва, жилой комплекс Квартал Строгино д. 2
Строгино (пешком 20 мин. транспортом 5 мин.)
Похожие предложения
Подберем для вас подходящие варианты.
Оставьте заявку, брокер подберет подходящие объекты всего за 5-10 минут и сэкономит до 80% вашего времени
Виталий
Виталий
Брокер по работе с клиентами
Виталий
×
Задайте вопрос:
Виталий
Брокеру по работе с клиентами
+ 7 (495) 374 90 77