Продажа помещения на Барвихинской
MalinaProperty MalinaProperty
Аренда и продажа коммерческой недвижимости
×
Продажа помещения на Барвихинской
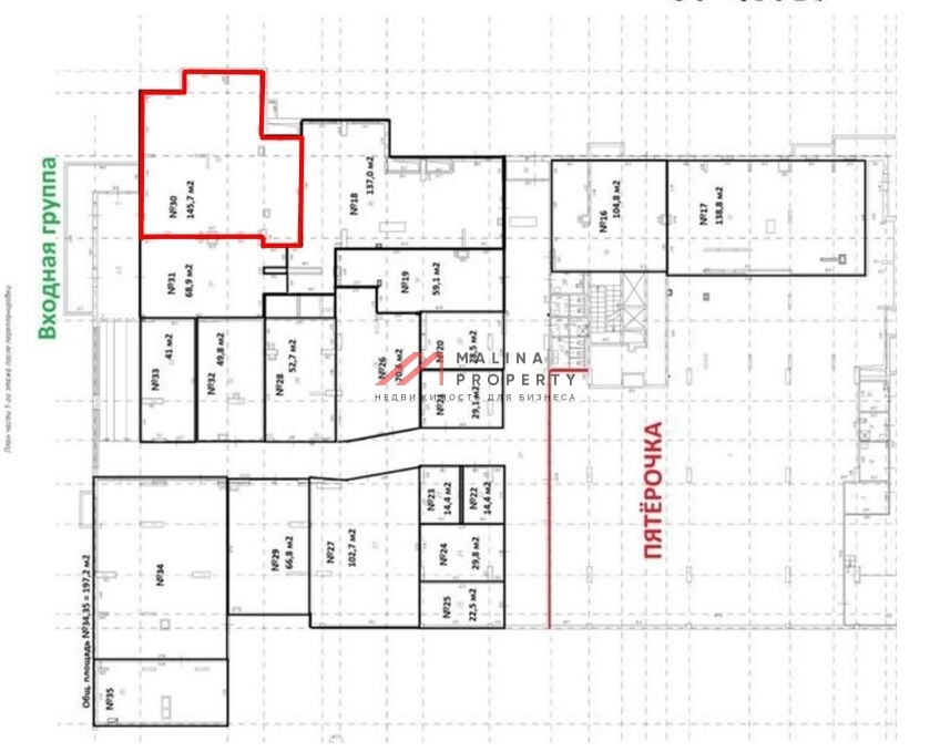
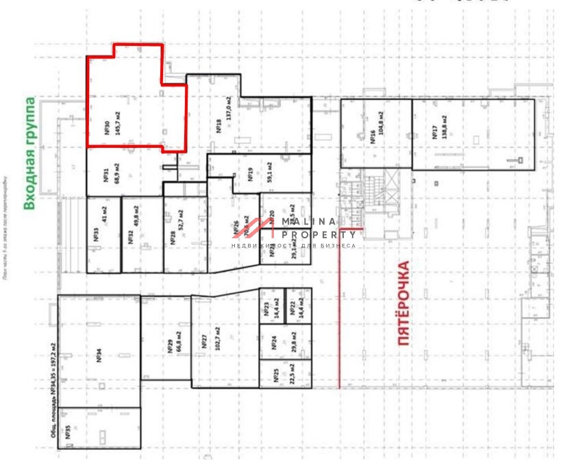
Торговое помещение (лот 184376)
г. Москва, ул Барвихинская д. 6
Молодежная (транспортом 7 мин.)
Похожие предложения
Подберем для вас подходящие варианты.
Оставьте заявку, брокер подберет подходящие объекты всего за 5-10 минут и сэкономит до 80% вашего времени
Дмитрий
Дмитрий
Брокер по работе с клиентами
Дмитрий
×
Задайте вопрос:
Дмитрий
Брокеру по работе с клиентами
+ 7 (495) 374 90 77