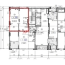
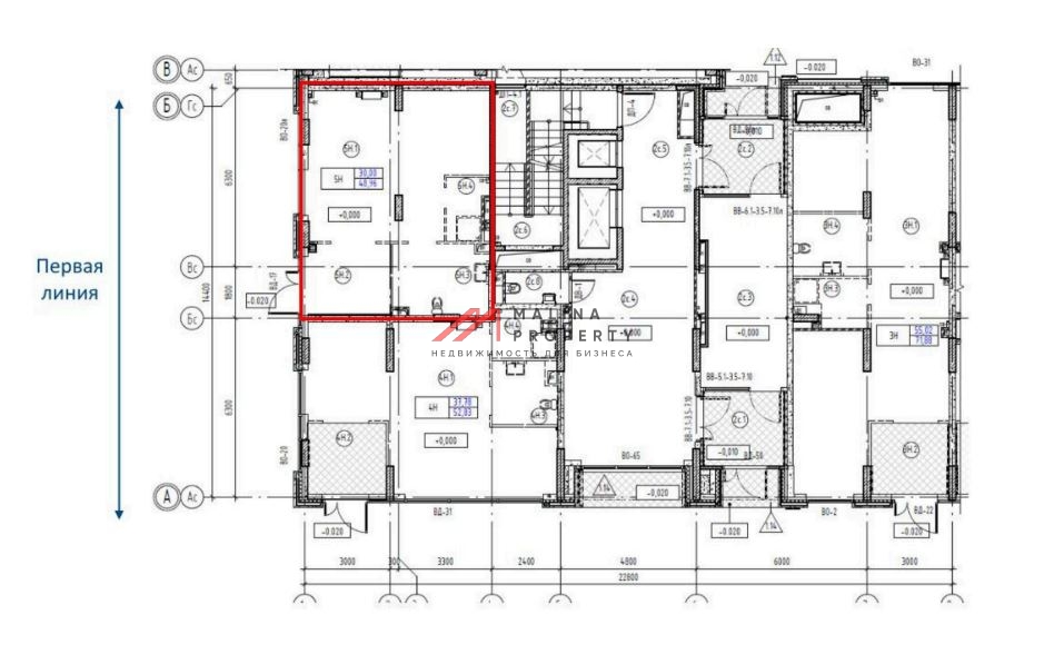
Продажа помещения с аптекой Горздав в ЖК "Квартал Строгино"
MalinaProperty MalinaProperty
Аренда и продажа коммерческой недвижимости
×
Продажа помещения с аптекой Горздав в ЖК "Квартал Строгино"
В новостройке (лот 185053)
г. Красногорск, д. Мякинино д. к2
Строгино (транспортом 15 мин.)
Похожие предложения
Подберем для вас подходящие варианты.
Оставьте заявку, брокер подберет подходящие объекты всего за 5-10 минут и сэкономит до 80% вашего времени
Анна
Анна
Брокер по работе с клиентами
Анна
×
Задайте вопрос:
Анна
Брокеру по работе с клиентами
+ 7 (495) 374 90 77