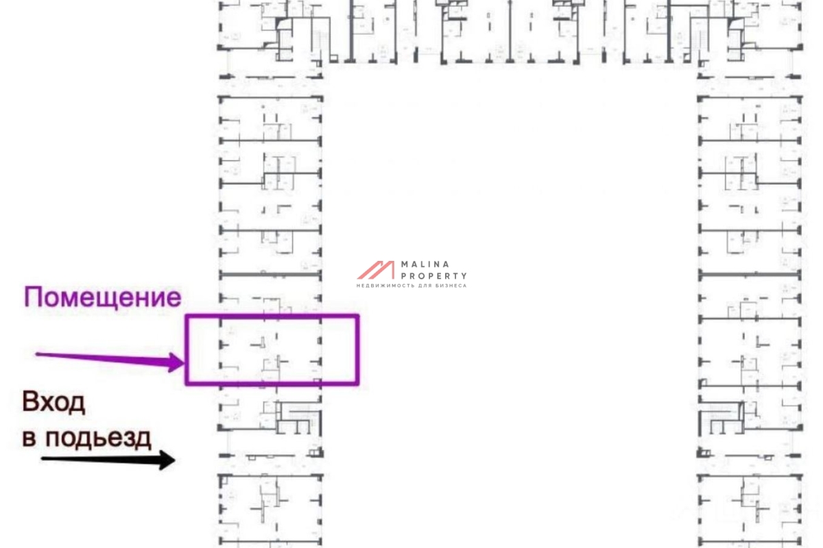
Продажа нежилого помещения с арендатором в ЖК "Томилино Парк"
MalinaProperty MalinaProperty
Аренда и продажа коммерческой недвижимости
×
Продажа нежилого помещения с арендатором в ЖК "Томилино Парк"
В новостройке (лот 185125)
г. Люберцы, Военкора Максима Фомина д. 6
Котельники (транспортом 10 мин.)
Похожие предложения
Подберем для вас подходящие варианты.
Оставьте заявку, брокер подберет подходящие объекты всего за 5-10 минут и сэкономит до 80% вашего времени
Анна
Анна
Брокер по работе с клиентами
Анна
×
Задайте вопрос:
Анна
Брокеру по работе с клиентами
+ 7 (495) 374 90 77
В данный момент объявление смотрят еще 1 человек(а)
ОК