Торговое помещение с арендатором в Хамовниках
MalinaProperty MalinaProperty
Аренда и продажа коммерческой недвижимости
×
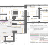
Торговое помещение с арендатором в Хамовниках
Торговое помещение (лот 185732)
г. Москва, ул Большая Пироговская д. 37-43ка
Спортивная (пешком 11 мин.)
Рекомендуем
Торг
Похожие предложения
Подберем для вас подходящие варианты.
Оставьте заявку, брокер подберет подходящие объекты всего за 5-10 минут и сэкономит до 80% вашего времени
Анна
Анна
Брокер по работе с клиентами
Анна
×
Задайте вопрос:
Анна
Брокеру по работе с клиентами
+ 7 (495) 374 90 77