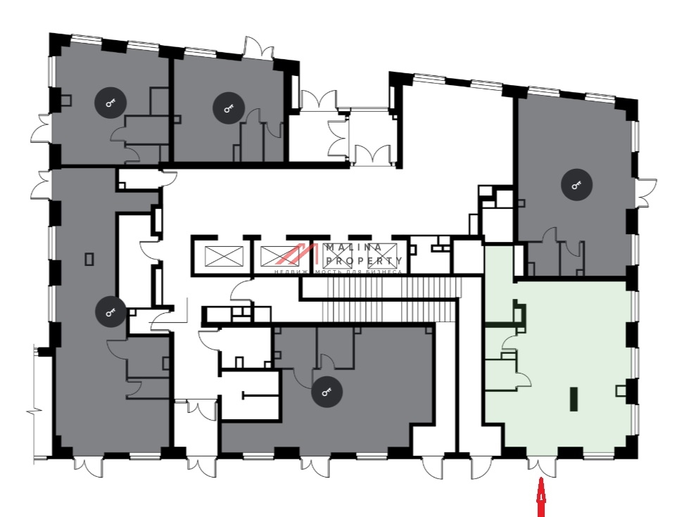
Продажа торгового помещения в ЖК "Павелецкая Сити"
MalinaProperty MalinaProperty
Аренда и продажа коммерческой недвижимости
×
Продажа торгового помещения в ЖК "Павелецкая Сити"
В новостройке (лот 185796)
г. Москва, жилой комплекс Павелецкая Сити д. корпус 15
Тульская (пешком 20 мин.)
Похожие предложения
Подберем для вас подходящие варианты.
Оставьте заявку, брокер подберет подходящие объекты всего за 5-10 минут и сэкономит до 80% вашего времени
Дмитрий
Дмитрий
Брокер по работе с клиентами
Дмитрий
×
Задайте вопрос:
Дмитрий
Брокеру по работе с клиентами
+ 7 (495) 374 90 77