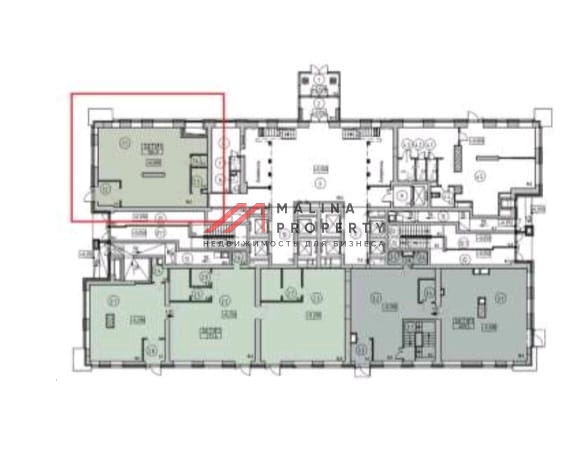
Аренда торгового помещения в ЖК «Afi Tower»
MalinaProperty MalinaProperty
Аренда и продажа коммерческой недвижимости
×
Аренда торгового помещения в ЖК «Afi Tower»
В новостройке (лот 185849)
г. Москва, проезд Серебрякова д. 11к2
Ботанический сад (пешком 11 мин.)
Похожие предложения
Подберем для вас подходящие варианты.
Оставьте заявку, брокер подберет подходящие объекты всего за 5-10 минут и сэкономит до 80% вашего времени
Никита
Никита
Брокер по работе с клиентами
Никита
×
Задайте вопрос:
Никита
Брокеру по работе с клиентами
+ 7 (495) 374 90 77