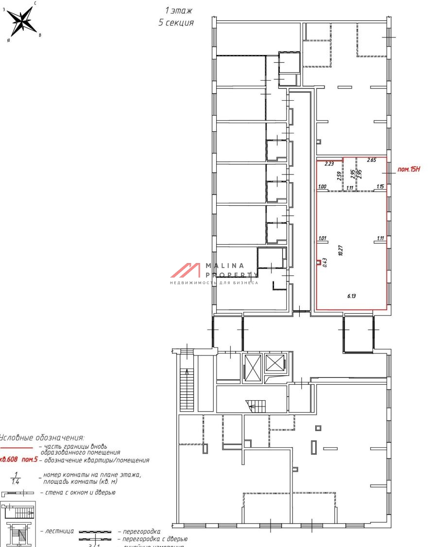
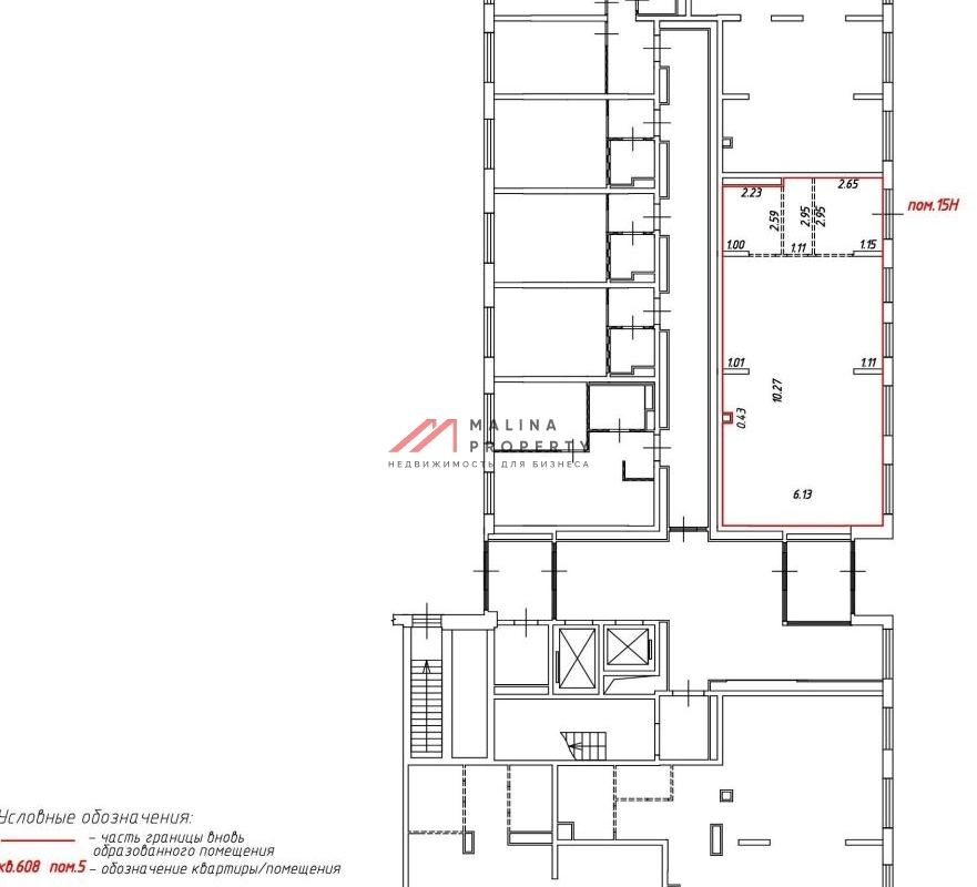
Аренда торгового помещения в ЖК Середневский лес
MalinaProperty MalinaProperty
Аренда и продажа коммерческой недвижимости
×
Аренда торгового помещения в ЖК Середневский лес
В новостройке (лот 186101)
г. Москва, р-он Филимоновский, ул. Братьев Бромлей д. 5 корпус 1
Филатов Луг (транспортом 20 мин.)
Похожие предложения
Подберем для вас подходящие варианты.
Оставьте заявку, брокер подберет подходящие объекты всего за 5-10 минут и сэкономит до 80% вашего времени
Никита
Никита
Брокер по работе с клиентами
Никита
×
Задайте вопрос:
Никита
Брокеру по работе с клиентами
+ 7 (495) 374 90 77