Продажа нежилого помещения в ЖК Ильинские Луга
×
Продажа нежилого помещения в ЖК Ильинские Луга
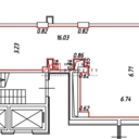
Торговое помещение (лот 186301)
г. Красногорск, пос. Ильинское-Усово, ул. Заповедная д. 9
Волоколамская (транспортом 15 мин.)
Эксклюзив
Похожие предложения
Подберем для вас подходящие варианты.
Оставьте заявку, брокер подберет подходящие объекты всего за 5-10 минут и сэкономит до 80% вашего времени
Олег
Олег
Брокер по работе с клиентами
Олег
×
Задайте вопрос:
Олег
Брокеру по работе с клиентами
+ 7 (495) 374 90 77