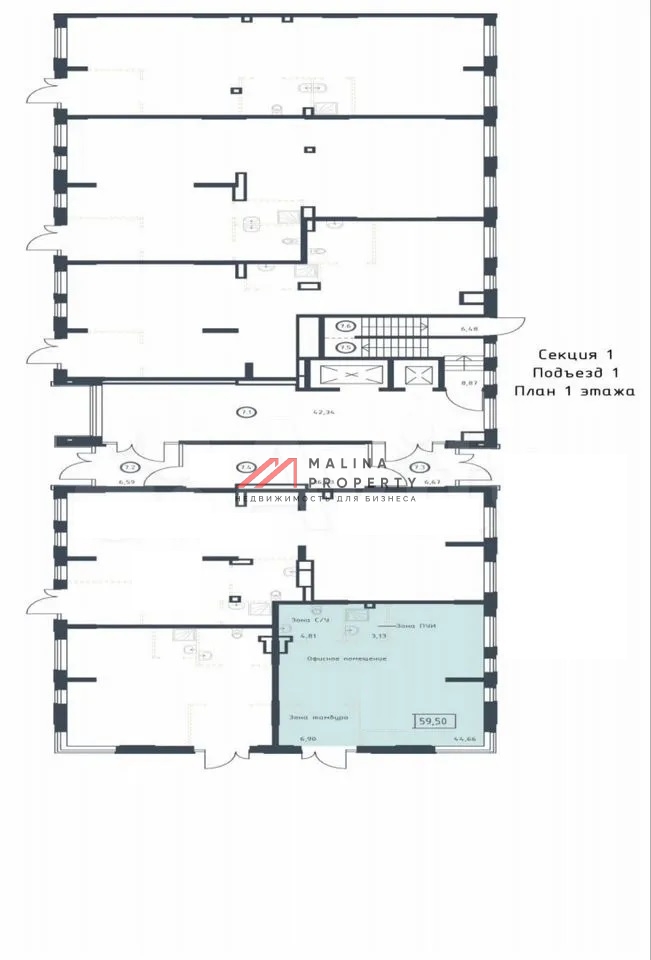
Продажа торгового помещения в ЖК "Прибрежный Парк"
MalinaProperty MalinaProperty
Аренда и продажа коммерческой недвижимости
×
Продажа торгового помещения в ЖК "Прибрежный Парк"
В новостройке (лот 186719)
г. Домодедово, Ям село, Мезенцева д. 19
Царицыно (транспортом 32 мин.)
Похожие предложения
Подберем для вас подходящие варианты.
Оставьте заявку, брокер подберет подходящие объекты всего за 5-10 минут и сэкономит до 80% вашего времени
Олег
Олег
Брокер по работе с клиентами
Олег
×
Задайте вопрос:
Олег
Брокеру по работе с клиентами
+ 7 (495) 374 90 77