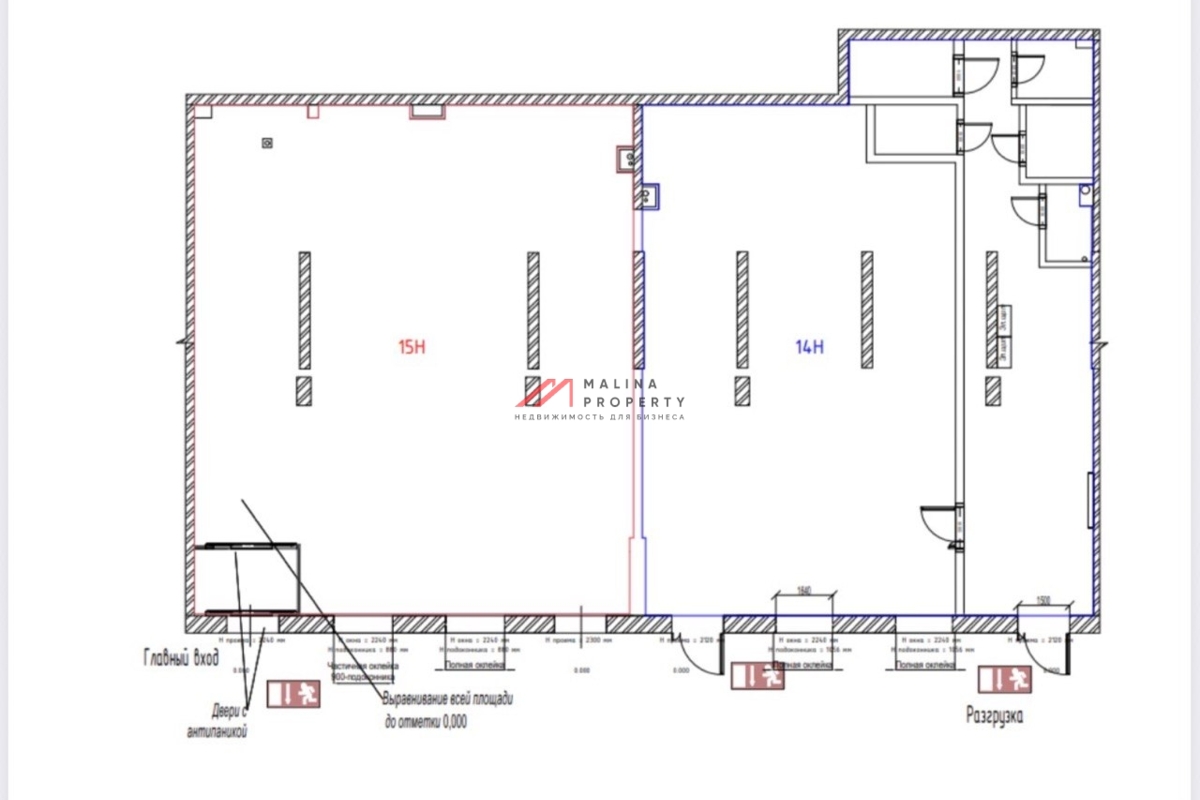
Продажа торгового помещения с супермаркетом Верный
×
Продажа торгового помещения с супермаркетом Верный
Торговое помещение (лот 187863)
г. Москва, 6-я Радиальная улица д. 7/1к1
Царицыно (транспортом 10 мин.)
Похожие предложения
Подберем для вас подходящие варианты.
Оставьте заявку, брокер подберет подходящие объекты всего за 5-10 минут и сэкономит до 80% вашего времени
Андрей
Андрей
Брокер по работе с клиентами
Андрей
×
Задайте вопрос:
Андрей
Брокеру по работе с клиентами
+ 7 (495) 374 90 77