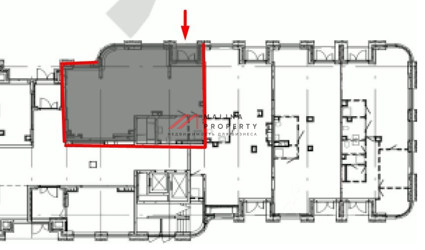
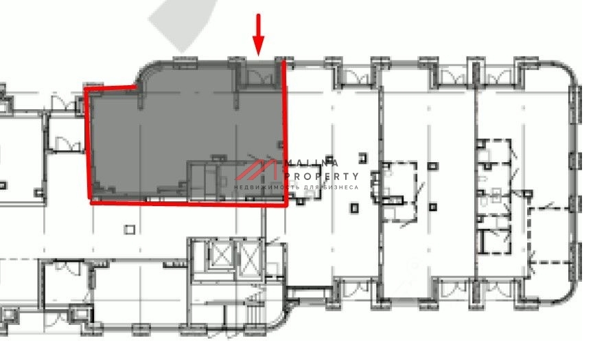
Продажа торгового помещения в ЖК "Shagal"
×
Продажа торгового помещения в ЖК "Shagal"
В новостройке (лот 188055)
г. Москва, набережная Марка Шагала д. 15к1
ЗИЛ (транспортом 5 мин.)
Похожие предложения
Подберем для вас подходящие варианты.
Оставьте заявку, брокер подберет подходящие объекты всего за 5-10 минут и сэкономит до 80% вашего времени
Андрей
Андрей
Брокер по работе с клиентами
Андрей
×
Задайте вопрос:
Андрей
Брокеру по работе с клиентами
+ 7 (495) 374 90 77