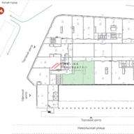
Аренда офиса в бизнес-центре "Никольская Плаза"
MalinaProperty MalinaProperty
Аренда и продажа коммерческой недвижимости
×
Аренда офиса в бизнес-центре "Никольская Плаза"
Бизнес-центр (лот 168747)
г. Москва, Никольская д. 10
Лубянка (пешком 5 мин.)
Похожие предложения
Подберем для вас подходящие варианты.
Оставьте заявку, брокер подберет подходящие объекты всего за 5-10 минут и сэкономит до 80% вашего времени
Александр
Александр
Брокер по работе с клиентами
Александр
×
Задайте вопрос:
Александр
Брокеру по работе с клиентами
+ 7 (495) 374 90 77