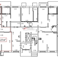
Продажа торгового помещения с сетевыми арендаторами
MalinaProperty MalinaProperty
Аренда и продажа коммерческой недвижимости
×
Продажа торгового помещения с сетевыми арендаторами
Торговое помещение (лот 181837)
г. Мытищи, пос. Мебельной Фабрики, Рассветная д. 1
Медведково (транспортом 25 мин.)
Похожие предложения
Подберем для вас подходящие варианты.
Оставьте заявку, брокер подберет подходящие объекты всего за 5-10 минут и сэкономит до 80% вашего времени
Анна
Анна
Брокер по работе с клиентами
Анна
×
Задайте вопрос:
Анна
Брокеру по работе с клиентами
+ 7 (495) 374 90 77